随着2024年第二十四期图学会BIM二级考试的圆满落幕,考生们对于真题及答案的需求愈发迫切。环球网校整理并发布考试真题,供考生们参考。
一、真题获取方式
由于文章篇幅限制,我们仅能展示部分真题。考生可以通过本页面提供的真题下载区域,免费下载完整的“2024年第二十四期图学会BIM考试真题”资料。
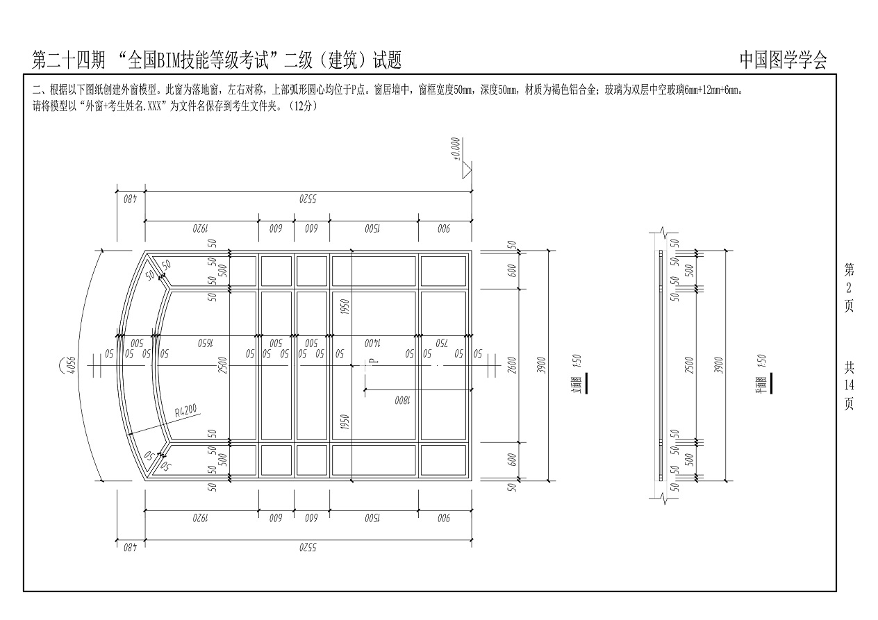
二级建筑


二级设备


二级结构


二、考试合格标准
《全国BIM等级考试》的合格标准为满分100分,60分及以上。考生达到或超过60分即可获得由中国图学学会颁发的《全国BIM技能等级证书》。证书分为三个级别:
合格:60分至69分
良好:70分至89分
优秀:90分至100分
三、成绩查询
全国BIM技能等级考试实行全国统一阅卷和复议。考试结束后,考生可以访问中国图学学会官网进行考试成绩查询。官网网址为:http://www.cgn.net.cn/。
祝各位考生在考试中取得优异的成绩。