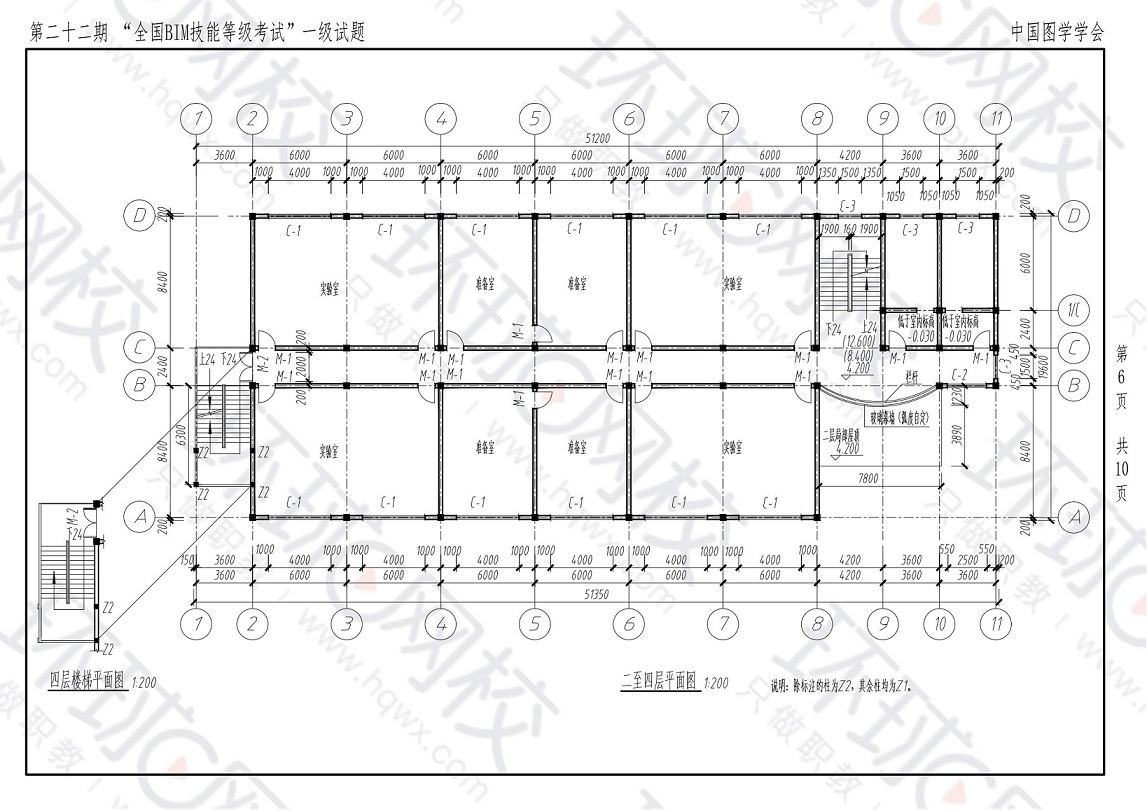
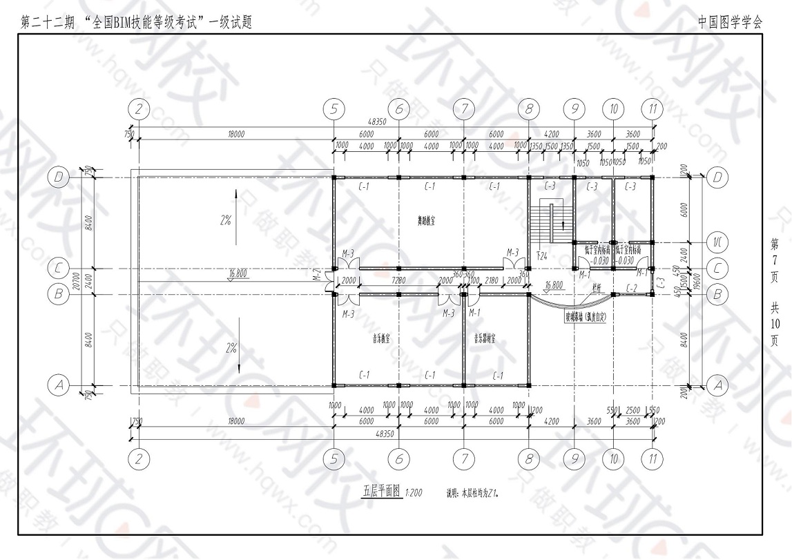
2023年第二十二期图学会BIM考试如期举行,本站编辑及时整理发布了2023年第二十二期图学会BIM一级考试真题考点分析,希望能对大家有所助益。










全国BIM等级考试多少分及格
《全国BIM等级考试》满分100分,60分及60分以上者均可获得由中国图学学会颁发的《全国BIM技能等级证书》,全国通用。中国图学学会《全国 BIM技能等级考试》证书体现合格、良好、优秀三个级别。合格:60分-69分;良好:70分-89分;优秀:90分-100分。全国BIM技能等级考试实行全国统一阅卷和复议。考试结束后,考生可以去中国图学学会网站进行考试成绩查询,网站网址:http://www.cgn.net.cn/。
全国BIM技能等级证书的含金量高吗
全国BIM技能等级考试组织部门是人社部和图学会,目前大型企业、中建、中铁等国企比较认可的就是全国BIM技能等级证书,因此这个考试证书含金量是很高的。